• Главная
  • кровать мадлен с подъемным механизмом инструкция по сборке

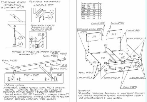
Инструкция по сборке кровати Мадлен с подъемным механизмом

17 февраля 2024 / 0 комментариев / 13 просмотров

Кровать Мадлен с подъемным механизмом - это удобное и функциональное решение для вашей спальни. Сборка данной модели кровати не представляет сложностей, особенно если вы следуете нашей подробной инструкции.

Чертеж кровати с подъемным механизмом 160х200 схема
1
Схема сборки кровати с подъемным механизмом 1600х2000
2
Схема кровати с подъемным механизмом 160х200 схема сборки
3
Чертеж сборки кровати Мадлен 3
4
кровать мадлен с подъемным механизмом инструкция по сборке
5
Кровать Hyper 1 (180х200) с ПМ схема сборки
6
Двухъярусная кровать Мадлен с диваном схема сборки
7
Схема сборки кровати Мадлен 3
8
Кровать Бруно 200 на 160 с подъемным механизмом инструкция по сборке
9
Двухъярусная кровать Мадлен с диваном схема сборки
10
кровать мадлен с подъемным механизмом инструкция по сборке
11
Кровать Нэнси с подъемным механизмом 160х200 схема сборки
12
Схема сборки кровати Мелисса Боровичи
13
Схема сборки кровати Мелисса Боровичи
Кровать Венеция 160х200 с подъемным механизмом габариты
14
Схема сборки кровати без подъемного механизма
15
Схема сборки кровати без подъемного механизма
Кровать Элана дуб сонома
16
Схема сборки кровати с подъемным механизмом 1600х2000 Парма Нео
17
Схема сборки кровати с подъемным механизмом Амели 2
18
Кровать Джессика 2 с подъемным механизмом сборка крепления
19
кровать мадлен с подъемным механизмом инструкция по сборке
20
Кровать 2 Hyper 160*200 с подъемным механизмом схема сборки
21
кровать мадлен с подъемным механизмом инструкция по сборке
22
Схема сборки кровати с подъемным механизмом Амели 2
23
Кровать 200*180 Браво мебель схема сборки
24

Шаг 1: Подготовка к сборке

Перед началом сборки убедитесь, что у вас есть все необходимые инструменты и комплектующие, а также прочтите инструкцию от производителя.

Сборка кровати с подъемным механизмом Вива Браво
25
кровать мадлен с подъемным механизмом инструкция по сборке
26
кровать мадлен с подъемным механизмом инструкция по сборке
27
Кровать Джессика 2 с подъемным механизмом сборка крепления
28
кровать мадлен с подъемным механизмом инструкция по сборке
29
кровать мадлен с подъемным механизмом инструкция по сборке
30
Кровать Аскона с подъемным механизмом 160х200 схема сборки
31
кровать мадлен с подъемным механизмом инструкция по сборке
32
Чертеж кровати с подъемным механизмом 160х200 схема
33
Кровать фирмы Перрино схема сборки
34
Кровать Люкс много мебели схема сборки
35
кровать мадлен с подъемным механизмом инструкция по сборке
36
кровать мадлен с подъемным механизмом инструкция по сборке
37
Металлический каркас кровати чертеж
38
Металлический каркас кровати чертеж
Кровать Милана 160х200 схема сборки
39
Кровать Люкс много мебели схема сборки
40
Кровать-тахта Lancaster 1 с подъемным механизмом схема сборки
41
МАЛЬМ кровать с подъемным механизмом, белый160x200 см
42
Кроватное ортопедическое основание схема сборки
43
Кроватное ортопедическое основание схема сборки
Кровать Амели 2 схема сборки
44
Кровать Тиффани м25 с подъемным механизмом
45
Схема сборки тахты Боровичи
46
Схема сборки тахты Боровичи
Кровать МИЛСОН София Plus 160
47
Кровать Морена 180х200 чертежи
48

Шаг 2: Сборка каркаса

Соберите каркас кровати, следуя инструкции и используя предоставленные крепежные элементы. Фотографии каждого этапа помогут вам правильно собрать каркас.

Кровать Жаклин с ящиками схема сборки
49
Кровать Глэдис Риннер
50
Ортопедическое основание 160х200 чертеж
51
Ортопедическое основание 160х200 чертеж
Кровать Соренто 120х200 схема сборки
52
Кровать Бася схема сборки
53
кровать мадлен с подъемным механизмом инструкция по сборке
54
Основание для кроватей 1,4 (ЛК-2, Дели) ортопед. Подъемный механизм
55
Основание для кроватей 1,4 (ЛК-2, Дели) ортопед. Подъемный механизм
Кровать Hyper 1800*2000 с подъемным механизмом
56
Схема сборки угловой тахты Боровичи
57
Схема сборки угловой тахты Боровичи
кровать мадлен с подъемным механизмом инструкция по сборке
58
Кровать Джессика 2 с подъемным механизмом габариты
59
кровать мадлен с подъемным механизмом инструкция по сборке
60
Кровать Оскар 73-1 с подъемным механизмом инструкция по сборке
61
Кровать двойная Элен 160
62
Кровать Виктория 160х200 схема сборки
63
Паскаль кровать БТС схема сборки
64
Кровать Мелисса 1200 Боровичи сборка
65
Кровать Норд 1600 с подъемным механизмом параметры
66
Кровать Hyper 1 (180х200) с ПМ схема сборки
67
кровать мадлен с подъемным механизмом инструкция по сборке
68
Кровать-13
69
Кровать Hyper 1 (180х200) с ПМ схема сборки
70
Кровать Марго м 617с схема сборки
71
кровать мадлен с подъемным механизмом инструкция по сборке
72

Шаг 3: Установка подъемного механизма

Приступите к установке подъемного механизма, который обеспечит удобный доступ к внутреннему пространству кровати для хранения вещей.

Кровать двуспальная Фиеста схема сборки
73
Кровать Амели 201
74
Кровать Beatrice хофф
75
кровать мадлен с подъемным механизмом инструкция по сборке
76
Кровать Люкс классика 1400 Боровичи
77
Тиффани м25 кровать с подъемным механизмом сборка схема
78
Хофф Ника Люкс кровать
79
Лером кровать схема сборки
80
Чертеж кровати с подъемным механизмом 160х200 схема
81
Кровать Фиеста БТС схема сборки
82
Чертеж кровати с подъемным механизмом 160х200
83
кровать мадлен с подъемным механизмом инструкция по сборке
84
кровать мадлен с подъемным механизмом инструкция по сборке
85
Схема сборки кровати Шатура мебель
86
Схема сборки кровати Шатура мебель
кровать мадлен с подъемным механизмом инструкция по сборке
87
кровать мадлен с подъемным механизмом инструкция по сборке
88
кровать мадлен с подъемным механизмом инструкция по сборке
89
Кровать Sontelle Ферри схема сборки
90
Кроватка трансформер Фея 1100 инструкция сборки
91
Кровать Тиффани м 25
92
Схема сборки кровати Карина 1200х1900
93
Схема сборки кровати Карина 1200х1900
Кровать Мартина
94
Схема сборки кровати СП-122н/200н с реечным основанием
95
Схема сборки кровати СП-122н/200н с реечным основанием
Кровать Оскар 73-1 с подъемным механизмом схема сборки
96

Шаг 4: Завершающие шаги

Завершите сборку, убедитесь в надежности всех креплений и функционировании подъемного механизма. Ваша кровать Мадлен готова к использованию!

Оставьте комментарий

Ваш электронный адрес не будет опубликован.