• Главная
  • чертеж для изготовления мебели

Чертеж для изготовления мебели

15 февраля 2024 / 0 комментариев / 9 просмотров
\"Чертеж для изготовления мебели\" (много фото)

Изготовление мебели своими руками может быть увлекательным и творческим процессом. Однако, прежде чем приступить к работе, необходимо иметь хороший чертеж, который поможет вам правильно организовать процесс изготовления. В данной статье мы собрали для вас множество чертежей для различных видов мебели, чтобы вдохновить вас и помочь вам в вашем проекте.

Чертежи по мебели вид сбоку разрез
1
Шкаф-купе схема сборки ширина 1000мм
2
Шкаф-купе схема сборки ширина 1000мм
Сборочный чертеж корпусной мебели
3
Чертежи мебели
4
Сборочный чертеж шкафа
5
Чертеж тумбочки с выдвижными ящиками, а снизу полки закрытые дверками
6
Чертежи раскроя кухонной мебели
7
Сборочный чертеж мебельного изделия
8
Базис Мебельщик сборочный чертеж
9
Примеры чертежей мебели
10
Стенка BRW Malcolm чертежи
11
Стенка BRW Malcolm чертежи
Сборочный чертеж корпусной мебели
12
Сборочный чертеж мебельного изделия
13
Чертежи мебели
14
Схема сборки углового кухонного шкафа
15
Схема сборки углового кухонного шкафа
Проектировка мебели в Базис Мебельщик
16
Чертежи раскроя кухонной мебели
17
Примеры чертежей мебели
18
Чертежи деталей мебели Базис Мебельщик
19
Табурет из профильной трубы 20 20 чертеж
20
чертеж для изготовления мебели
21
Чертежи мебели из дерева
22
Чертеж комода из дерева с размерами и деталировкой
23
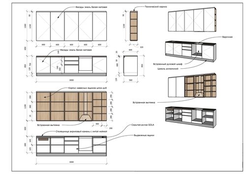
Кухня с профилем gola чертеж
24
чертеж для изготовления мебели
25
Сборочный чертеж корпусной мебели
26
Сборочный чертеж кресла
27
Взрыв схема изделия
28
Взрыв схема изделия
чертеж для изготовления мебели
29
Базис Мебельщик сборочный чертеж
30
Сборочный чертеж корпусной мебели
31
Деталировка кухонных шкафов
32
Деталировка кухонных шкафов
Стол из массива дерева своими руками чертежи и схемы сборки
33
Стол из массива дерева своими руками чертежи и схемы сборки
Чертеж каркаса кресло Лорд
34
Чертежи раскроя кухонной мебели
35
Кресло Честер чертежи каркаса
36
Кресло Честер чертежи каркаса
Буфет
37
Буфет "Мехико" угловой,сосна, БМ-1627-00
Детский стульчик из фанеры своими руками чертежи
38
Детский стульчик из фанеры своими руками чертежи
Мебель для кукольного домика своими руками из картона схема
39
Мебель для кукольного домика своими руками из картона схема
Чертеж секретера своими руками
40
Комод из мебельного щита своими руками чертежи и схемы
41
Комод из мебельного щита своими руками чертежи и схемы
Шкаф стол угловой под мойку п 2.10.1ум-сборка кухонный чертежи
42
Шкаф стол угловой под мойку п 2.10.1ум-сборка кухонный чертежи
Чертеж табуретки из фанеры с размерами
43
Скамейка Садовая со спинкой своими руками чертежи из дерева
44
Скамейка Садовая со спинкой своими руками чертежи из дерева
Чертеж кухонный гарнитур 2.10
45
Чертеж кухни
46
Чертёж кухни угловой 2.90
47
Чертёж кухни угловой 2.90
Схема для изготовления стула
48
Кресло Чиппендейл чертеж
49
Кухонный гарнитур своими руками из дерева чертежи
50
Кухонный гарнитур своими руками из дерева чертежи
Комод Катрин 5 схема сборки
51
Комод Катрин 5 схема сборки
Чертеж детской табуретки
52
Чертежи для мебельного производства шапка
53
Чертежи для мебельного производства шапка
Шкаф Мори МШ 1200.1 схема сборки
54
Шкаф Мори МШ 1200.1 схема сборки
Царга обеденного стола чертеж
55
Чертежи кукольной мебели
56
Шкаф подвесной чертеж
57
Царга обеденного стола чертеж
58
Чертежи кукольной мебели
59
Шкаф подвесной чертеж
60
Шкаф купе Dolap схема сборки
61
Шкаф купе Dolap схема сборки
Чертеж шкафа купе для распила
62
Кухонной мебели чертежи стандарт
63
Чертеж кухни
64
Где находится чертежи для Марианна
65
Где находится чертежи для Марианна
Барная стойка из дерева своими руками чертеж
66
Чертеж шкаф купе 2700мм
67
Чертежи мебели ревит
68
Конструирование из бумаги мебель подготовительная группа
69
Конструирование из бумаги мебель подготовительная группа
Раскрой кухни
70
Раскрой кухни
Стандартная высота верхних кухонных шкафов Селена 205
71
Стандартная высота верхних кухонных шкафов Селена 205
Буфет Размеры
72
Буфет Размеры
Раскройка мебели
73
Чертежи мебели
74
Чертёж табуретки на Шиповом соединении
75
Чертёж табуретки на Шиповом соединении
Кухонная мебель вид сбоку чертеж
76
Астра конструктор мебели Простановка размеров
77
Садовая скамейка со столиком чертеж
78
Мебельные чертежи
79
Мебельные чертежи
Кухонный буфет чертеж
80
Складной стул со спинкой из дерева чертежи
81
Складной стул со спинкой из дерева чертежи
Akur Loft Dayton стеллаж чертеж
82
Стул из фанеры на ЧПУ чертежи
83
Стул из фанеры на ЧПУ чертежи
Стул из фанеры на ЧПУ чертежи
84
Стул из фанеры на ЧПУ чертежи
Угловой стол для Астра конструктор мебели
85
Чертежи присадки мебельных деталей
86
Чертежи присадки мебельных деталей
Схема распила ЛДСП для кухни
87
Схема распила ЛДСП для кухни
Схема производства мягкой мебели
88
Чертежи кухонных шкафов деталировка
89
Чертежи кухонных шкафов деталировка
Сборочный чертеж стула
90
Тумба прикроватная Ронда BMS 420 420 400 схема сборки
91
Тумба прикроватная Ронда BMS 420 420 400 схема сборки
Чертежи раскроя кухонной мебели
92
Комод из мебельного щита своими руками чертежи и схемы
93
Комод из мебельного щита своими руками чертежи и схемы
Мебель для кукол своими руками чертежи
94
Мебель для кукол своими руками чертежи
Угловой кухонный гарнитур 2000х1400 схема
95
Угловой кухонный гарнитур 2000х1400 схема
Складная табуретка из дерева своими руками чертежи
96
Складная табуретка из дерева своими руками чертежи
Чертежи корпусной мебели
97
Кресло качалка Адирондак чертеж
98
Чертежи мебели
99
Столик для бани из дерева своими руками чертежи и схемы
100
Столик для бани из дерева своими руками чертежи и схемы
Лавка табурет чертеж
101
Шкаф 2000*600*2400 схема сборки
102
Шкаф 2000*600*2400 схема сборки
Сборочный чертеж кресла
103
Сборочный чертеж мебельного изделия
104
Скамья трансформер ССТ-01 полный чертеж
105
Кресло из бруса 150х150 чертеж
106
Чертеж ножки кабриоль с размерами
107
Скамейка для бани своими руками из дерева чертежи
108
Скамейка для бани своими руками из дерева чертежи
Кухонный уголок Березка 1500x1100 сборка
109
Кухонный уголок Березка 1500x1100 сборка
Схема для проектирования мебели
110

Чертежи для изготовления столов

Столы бывают разнообразными: обеденные, письменные, журнальные. Для каждого из них необходим свой чертеж, учитывающий особенности конструкции и функциональные особенности. Мы подготовили для вас чертежи различных столов, чтобы вы могли выбрать подходящий для вашего проекта.

... (продолжение статьи до 5000 символов)
Оставьте комментарий

Ваш электронный адрес не будет опубликован.