• Главная
  • расстояние от электрического шкафа до стены

Расстояние от электрического шкафа до стены

28 января 2024 / 0 комментариев / 12 просмотров

Определение правильного расстояния от электрического шкафа до стены является важным шагом при проведении электромонтажных работ. Неправильное расположение шкафа может привести к неудобствам и нарушению электробезопасности.

Стандарт розеток снизу
1
Стандарт розеток снизу
Схема монтажа электропроводки кабель
2
Схема монтажа электропроводки кабель
Стандарты расположения розеток и выключателей
3
Стандарты расположения розеток и выключателей
Нормы по установке розеток и выключателей в жилых помещениях
4
Нормы по установке розеток и выключателей в жилых помещениях
Высота установки силовых розеток
5
Высота установки силовых розеток
Высота установки электрического щита в квартире
6
Высота установки электрического щита в квартире
Высота расположения выключателей от пола
7
Высота расположения выключателей от пола
Высота для установки розеток и выключателей скрытой проводки
8
Высота для установки розеток и выключателей скрытой проводки
Высота розеток и выключателей от пола
9
Высота розеток и выключателей от пола
Стандарты размещения розеток и выключателей по высоте
10
Стандарты размещения розеток и выключателей по высоте
Стандарт высоты выключателя от пола
11
Стандарт высоты выключателя от пола
Щиток этажный высота установки
12
Щиток этажный высота установки
Нормы установки газового напольного котла расстояние от стен
13
Высота монтажа водорозеток для стиральной машины
14
Высота монтажа водорозеток для стиральной машины
Стандарты размещения розеток и выключателей
15
Стандарты размещения розеток и выключателей
расстояние от электрического шкафа до стены
16
Высота установки розеток от пола по ПУЭ
17
Высота установки розеток от пола по ПУЭ
расстояние от электрического шкафа до стены
18
Высота установки выключателей
19
Высота установки выключателей
Распределительные коробки для электропроводки в плинтусах
20
Распределительные коробки для электропроводки в плинтусах
Схема подключения поэтажного щита
21
Схема подключения поэтажного щита
Выключатели в частном доме
22
Выключатели в частном доме
Высота установки щита электрического
23
Высота установки щита электрического
Схема установки индукционной варочной панели над духовкой
24
Схема установки индукционной варочной панели над духовкой
На какой высоте устанавливается розетка для электроплиты
25
На какой высоте устанавливается розетка для электроплиты
Розетки на угловой кухне расположение
26
Розетки на угловой кухне расположение
Нормы размещения розеток и выключателей в квартирах
27
Нормы размещения розеток и выключателей в квартирах
Икеа размещение розеток на кухне
28
Икеа размещение розеток на кухне
Икеа размещение розеток на кухне
29
Икеа размещение розеток на кухне
Схема расположения розеток на кухне
30
Схема расположения розеток на кухне
Расположение выключателей от пола евростандарт
31
Расположение выключателей от пола евростандарт
Схема штробления проводки в квартире
32
Схема штробления проводки в квартире
Стандарты расположения розеток
33
Стандарты расположения розеток
Схема монтажа электрики на кухне
34
Схема монтажа электрики на кухне
Розетка для духового шкафа расположение сзади
35
Схема подключения силовой розетки для варочной панели
36
Схема подключения силовой розетки для варочной панели
Схема подключения кухонной вытяжки к электросети
37
Схема подключения кухонной вытяжки к электросети
Какое расстояние от газовой плиты до вытяжки
38
Схема сантехнический монтаж кухня
39
Схема сантехнический монтаж кухня
Схема электропроводки ванна
40
Схема электропроводки ванна
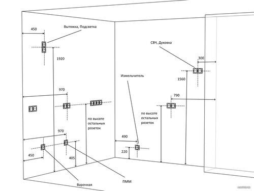
Высота установки розеток духового шкафа и микроволновки
41
Схема установки водорозеток на кухне
42
Схема установки водорозеток на кухне
Схема разводки электропроводки на кухне
43
Схема разводки электропроводки на кухне
Схема монтажа электропроводки кабель
44
Схема монтажа электропроводки кабель
Стандарты установки розеток и выключателей схема
45
Стандарты установки розеток и выключателей схема
Схема электропроводки для подключения бытовой техники на кухне
46
Схема электропроводки для подключения бытовой техники на кухне
Схема подключения кухонной электропроводки к
47
Схема подключения кухонной электропроводки к
Розетки под духовку и варочную панель высота
48
Розетки под духовку и варочную панель высота
Охранная зона водопровода 100 мм трубы
49
Охранная зона водопровода 100 мм трубы
Схема электропроводки освещения в кухне
50
Схема электропроводки освещения в кухне
Высота установки вывода под раковину на кухню
51
Высота установки вывода под раковину на кухню
Разметка проводки порядок монтажа электропроводки
52
Разметка проводки порядок монтажа электропроводки
Схема размещения розеток на кухне
53
Схема размещения розеток на кухне
Соединение нулевого и заземляющего провода в щитке
54
Соединение нулевого и заземляющего провода в щитке
Схема установки водорозеток на кухне
55
Схема установки водорозеток на кухне
расстояние от электрического шкафа до стены
56
Эргономика душевой
57
Эргономика душевой
Заземление электрооборудования
58
Заземление электрооборудования
расстояние от электрического шкафа до стены
59
Помещение электрощитовая габариты
60
Помещение электрощитовая габариты
Размещение выключателя от дверного проема
61
Размещение выключателя от дверного проема
Стандарты установки розеток и выключателей в квартире
62
Стандарты установки розеток и выключателей в квартире
Высота розеток и выключателей от пола
63
Высота розеток и выключателей от пола
Схема монтажа проводки в квартире
64
Схема монтажа проводки в квартире
Схема установки счетчика газа
65
Схема установки счетчика газа
Индукционная варочная поверхность Bosch схема встройки
66
Индукционная варочная поверхность Bosch схема встройки
Минимальный зазор для вентиляции встроенного духового шкафа
67
расстояние от электрического шкафа до стены
68
Высота монтажа полотенцесушителя схема
69
Высота монтажа полотенцесушителя схема
Высота розеток для встроенной духовки и микроволновки
70
Высота розеток для встроенной духовки и микроволновки
расстояние от электрического шкафа до стены
71
Монтажная схема щита распределительного
72
Монтажная схема щита распределительного
Нормы установки розеток и выключателей в квартире
73
Нормы установки розеток и выключателей в квартире
Высота вытяжки над газовой плитой
74
Высота вытяжки над газовой плитой
расстояние от электрического шкафа до стены
75
Схема монтажа газовой колонки
76
Схема монтажа газовой колонки
Зона 3 в ванной комнате ПУЭ
77
Зона 3 в ванной комнате ПУЭ
Высота столешницы Нойферт
78
Высота столешницы Нойферт
Встраиваемый биокамин f1000g схема
79
Встраиваемый биокамин f1000g схема
Схема розеток на кухне икеа
80
Схема розеток на кухне икеа
Газовая варочная поверхность схема монтажа
81
Газовая варочная поверхность схема монтажа
расстояние от электрического шкафа до стены
82
Схема разводки электропроводки проходных выключателей
83
Схема разводки электропроводки проходных выключателей
Розетка для посудомойки расположение
84
Розетка для посудомойки расположение
Схема монтажа розеток на кухне
85
Схема монтажа розеток на кухне
Схема монтажа газовой колонки
86
Схема монтажа газовой колонки
Зона 3 в ванной комнате ПУЭ
87
Зона 3 в ванной комнате ПУЭ
Высота столешницы Нойферт
88
Высота столешницы Нойферт
Встраиваемый биокамин f1000g схема
89
Встраиваемый биокамин f1000g схема
Схема розеток на кухне икеа
90
Схема розеток на кухне икеа
Расположение выключателей от пола
91
Расположение выключателей от пола
Газовая варочная поверхность схема монтажа
92
Газовая варочная поверхность схема монтажа
расстояние от электрического шкафа до стены
93
Схема разводки электропроводки проходных выключателей
94
Схема разводки электропроводки проходных выключателей
Розетка для посудомойки расположение
95
Розетка для посудомойки расположение
Схема монтажа розеток на кухне
96
Схема монтажа розеток на кухне
Вывод кабеля для подсветки кухни высота
97
Вывод кабеля для подсветки кухни высота
Терморегулятор Caleo 720
98
Терморегулятор Caleo 720
расстояние от электрического шкафа до стены
99
Правильная схема разводки электропроводки
100
Правильная схема разводки электропроводки
Схема установки силовой розетки для электроплиты
101
Схема установки силовой розетки для электроплиты
расстояние от электрического шкафа до стены
102
Норматив крепления металлических трубопроводов
103
Норматив крепления металлических трубопроводов
Встраиваемая посудомоечная машина 45 схема монтажа
104
Встраиваемая посудомоечная машина 45 схема монтажа
Схема штробления проводки в квартире
105
Схема штробления проводки в квартире
Высота кухонной столешницы стандарт
106
Высота кухонной столешницы стандарт
Высота кухонной столешницы стандарт
107
Высота кухонной столешницы стандарт
Охранная зона трубопровода канализации
108
Охранная зона трубопровода канализации
Расстояние от автостоянки до жилого дома нормы
109
Расположение розеток
110
Расположение розеток
Расстояние от парковки до жилого дома САНПИН
111

Правила определения расстояния

Для определения правильного расстояния от электрического шкафа до стены необходимо учитывать несколько факторов, таких как размеры шкафа, виды кабелей, требования электробезопасности и технические нормы.

Оставьте комментарий

Ваш электронный адрес не будет опубликован.